第3ガーデンハイツ 801号室
- 賃料
- マンション
- 間取
- 2LDK
- 成約済
- 共益費・管理費
- 2000円
- 敷金
- 2ヶ月
- 礼金
- 1ヶ月
|
|
|
|
| 所在地 | 鳥取県鳥取市鳥取市富安2丁目 第3ガーデンハイツ |
交通 | JR山陰本線鳥取駅 徒歩270m 徒歩3.5分 |
|---|
物件の画像
物件詳細
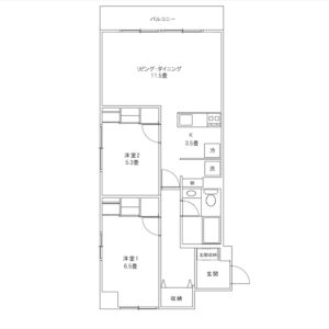
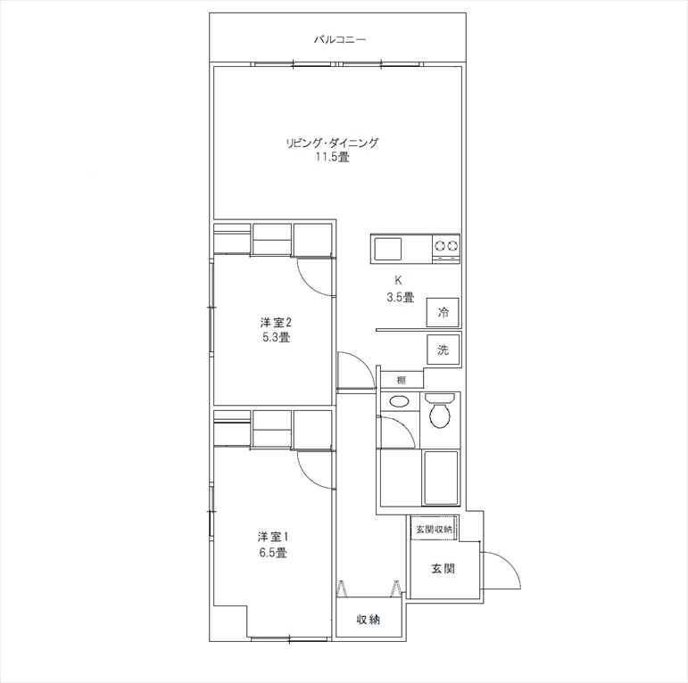
2LDKのお部屋です。
2025年10月31日に間取り変更工事&リフォームが完了予定です。
角部屋 & 居室部分のみで72㎡のリフォーム物件です。
~801号室の特徴~
リビング&ダイニング11.5畳・キッチン3.5畳・洋室①が6.5畳、洋室②が5.3畳です。
LDKは淡いグリーン、洋室①は落ち着いたダーク系のお部屋です。
全室エアコン付きです。※リビング・ダイニングに40型・洋室①&➁は22型の合計3台。
キッチン交換&移設により、キッチン背面のスペースを拡大出来ました。
玄関が広いので、玄関収納&靴収納が充実しています。
また、第3ガーデンハイツでは工事不要にて、、、、
無料インターネットサービスのご利用が可能です!
※月額料金不要・プロバイダー不要にてご利用可能となります。
≪2025年10月31日完成のリフォーム内容≫
●システムキッチンへ交換 ●トイレ新品へ交換(ウオッシュレット節水タイプ)
●和室×2部屋撤去を含む間取り変更実 ●フローリング全交換 ●室内建具全交換 ●クロス全交換
●洗濯機置場の移設&棚設置(ちょっとしたパントレーです)●キッチンスペースの拡大
●システムキッチンに交換&対面化 ●シャンプードレッサー取付 ●玄関靴収納交換大
●居室照明器具をLEDダウンライトへ交換(調光機能スイッチ付)
●サッシに木製ブラインドを設置
便利な施設が徒歩圏内にあります。
例)駅、スポーツクラブ、病院、コンビニ(ファミリーマート)、銀行などの便利施設が徒歩圏内です。
イオン南店と市役所は若干遠いですが自転車ならラクラクです。近隣にスターバックスも出来ました。
| 築年月 | 1984/11 | 建物面積 | m² |
|---|---|---|---|
| バルコニー | 11.76m² | 向き | 南 |
| 建物階数 | 地上8階 | 部屋階数 | 8階 |
| 部屋・区画番号 | 801号室 | 総戸/区画数 | 35 |
| 建物構造 | RC | ||
| 間取内容 | LD11.5畳 K3.5畳 洋室6.5畳 洋室5.3畳 |
||
| 駐車場 | 9000円 空有 近隣駐車場(徒歩2分)契約の場合は、月額駐車料7,000円です。 | 取引態様 | 売主/貸主 |
| 引渡/入居時期 | 現況 | ||
| 周辺環境 | 美保小学校 南中学校 | ||
| 設備・条件 | リフォーム済 角部屋 三口コンロ システムキッチン カウンターキッチン 給湯 バス専用 シャワー ユニットバス トイレ専用 バス・トイレ別 温水洗浄便座 エアコン 室内洗濯機置き場 CATV CSアンテナ BSアンテナ 光ファイバー 地デジ対応 インターネット有 TVドアホン 都市ガス 公営水道 エレベータ 宅配ボックス 駐車場有 駐輪場 バルコニー フローリング | ||
| 物件番号 | 030801 | ||
| 自社物 | 自社物 | 状態 | 成約済 |
※物件掲載内容と現況に相違がある場合は現況を優先と致します。
物件マップ
Loading...
問合せ先
株式会社 観光
〒680-0834 鳥取県鳥取市永楽温泉町505
TEL 0857-22-3108 FAX 0857-22-3198
鳥取県知事免許(12)第67号
〒680-0834 鳥取県鳥取市永楽温泉町505
TEL 0857-22-3108 FAX 0857-22-3198
鳥取県知事免許(12)第67号






















