コスモス天神 110号室new
- 賃料
- マンション
- 間取
- 1K
- 成約済
- 共益費・管理費
- 4500円
- 敷金
- 5万円
- 礼金
- 1ヶ月
|
|
|
|
| 所在地 | 鳥取県鳥取市天神町35-1 コスモス天神 |
交通 | JR山陰本線鳥取駅 徒歩600m 徒歩8分 |
|---|
物件の画像
物件詳細
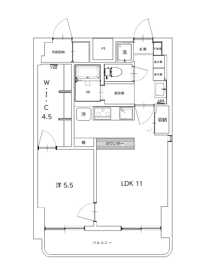
1LDKのお部屋です。
2026年3月に間取り変更工事&リフォームを実施しました。
今回のリフォームのコンセプトは、、、、、、
モダン★リビング & ウォークイン★クローゼット《4.5畳!》付きの1LDKです。
また、工事&手続き不要にて、、、、
無料インターネットのご利用が可能となります。
※月額料金不要・プロバイダー不要にてご利用可能となります。
~ 今回のリフォームの特徴 ~
●グレーの壁紙と白の建具&黒の取手、照明はLEDダウンライト(調光スイッチ付)を設置しました。、
●洗面化粧台新設、ユニットバス&トイレは交換済です。、
●キッチンにカウンター設置、お二人様で鍋でも囲んで下さい。
●クローゼットを約3倍に拡大&1部2階建て構造で収納力をUPしました!。
●キッチンを1050㎜タイプから1550㎜タイプへ変更しました。
●ユニットバス以外の床段差を全て解消、フラットになりました。※地味に大変でした、、、、、
●エアコンを交換しました。旧型より電気代がお得です!
●温水器を180Lタイプから300Lタイプへ変更。
便利な施設が徒歩圏内にあります。
例)市役所、銀行、鳥取駅も徒歩圏内です。
また、敷地の表にローソン、イオン鳥取店までは徒歩350mです。
| 築年月 | 1997/03 | 建物面積 | m² |
|---|---|---|---|
| バルコニー | 2.8m² | 向き | 南 |
| 建物階数 | 地上9階 | 部屋階数 | 1階 |
| 部屋・区画番号 | 110号室 | 総戸/区画数 | 62 |
| 建物構造 | RC | ||
| 管理形態 | 全部委託 | ||
| 間取内容 | LDK11畳 洋室5.5畳 その他4.5畳 |
||
| 駐車場 | 8800円 空有 | 取引態様 | その他 |
| 引渡/入居時期 | 現況 | ||
| 周辺環境 | |||
| 設備・条件 | リフォーム済 2人入居可 電気コンロ 三口コンロ システムキッチン カウンターキッチン 給湯 洗髪洗面化粧台 バス専用 シャワー 浴室乾燥機 ユニットバス トイレ専用 バス・トイレ別 温水洗浄便座 エアコン W.INクローゼット 室内洗濯機置き場 光ファイバー 地デジ対応 インターネット有 TVドアホン 公営水道 エレベータ 駐輪場 バルコニー フローリング ※水道料金は月額3,000円(税込/お一人様の場合)となります。 | ||
| 物件番号 | 110110 | ||
| 自社物 | 状態 | 成約済 | |
※物件掲載内容と現況に相違がある場合は現況を優先と致します。
物件マップ
Loading...
問合せ先
株式会社 観光
〒680-0834 鳥取県鳥取市永楽温泉町505
TEL 0857-22-3108 FAX 0857-22-3198
鳥取県知事免許(12)第67号
〒680-0834 鳥取県鳥取市永楽温泉町505
TEL 0857-22-3108 FAX 0857-22-3198
鳥取県知事免許(12)第67号





















